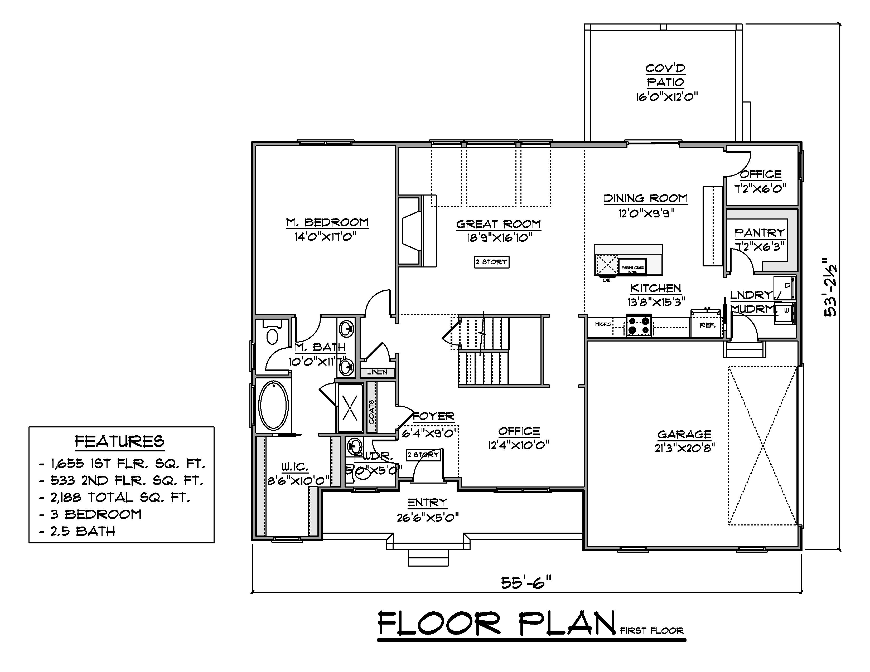
The Ridge II
Plan #7112-RAE
2188 sq ft
3 bedroom
2.5 bath
2 story
master on main
2 Car garage
55 feet: max width
Open Floor Plan
Two Office Spaces
Large Pantry
Walk-In Closet
Covered Patio
Request Info
Let's Talk
Open Floor Plan
Two Office Spaces
Large Pantry
Walk-In Closet
Covered Patio
Request Info