The Alcove

Plan #5686-FRNDSHP


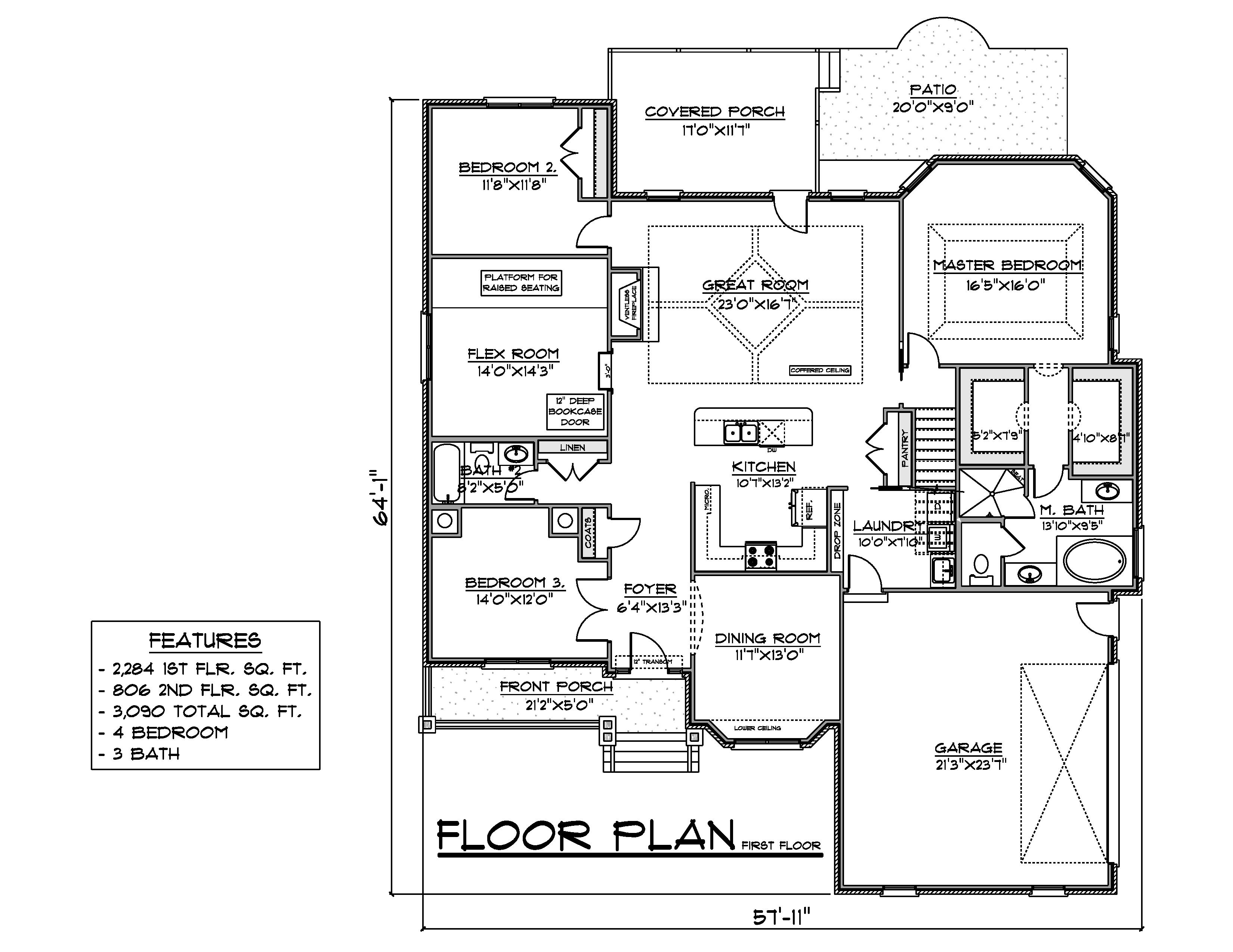
Key Details
  • 3090 sq ft
  • 4 bedroom
  • 3 bath
  • 2 story
  • master on main
  • 2 Car garage
  • 64 feet: max width
Other Features
  • Open Living Area
  • Plentiful Outdoor Entertainment Areas
  • Hidden Door to Flex Room
  • Double Walk-In Master Closets
  • Large Loft
Request Info
Images of this floorplan